Menu
Un projet réalisé par :T design  Architecte à Boulogne-Billancourt

L'appartement japonnais

 Boulogne-Billancourt - 92
T design
Accueil Projets L'appartement japonnais

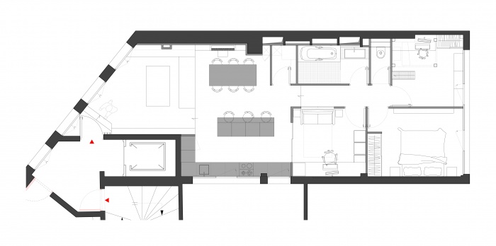
Transformation d'un plateau de bureau en appartement pour des clients franco japonais en provenance de Tokyo

L'appartement japonnais

Commande d'un couple franco japonais pour cette transformation à usage d'habitation.
D'inspiration minimaliste, clair, lumineux et boisé, cet appartement s'inspire du mode vie moderne des japonais où la lumière, la légèreté le confort restent les maîtres mots.
Ici, la partie jour sur rue se voit dotée d'une zone parquet clair et bibliothèque lumineuse, buffet et canapé sur mesure alors que la cuisine ouverte offre un sol plus minéral, blanc avec le rappel du bois en façade des meubles cuisine.
La partie nuit et le bureau/chambre se bardent de bois toujours dans les même tons, lui conférant un aspect plus cosy et chaleureux avec circulation permanente de la lumière naturelle en imposte haute. La salle de bain "à la japonaise" comme les toilettes s'organisent le long de gaines d'évacuation de l'immeuble tandis que la cuisine profitera d'une estrade sur la partie nuit pour faire courir ses évacuations arrivées d'eau.

  • L'appartement japonnais : image_projet_mini_87948
  • L'appartement japonnais : L5
  • L'appartement japonnais : L7
  • L'appartement japonnais : L4
  • L'appartement japonnais : L2
  • L'appartement japonnais : image_projet_mini_87943
  • L'appartement japonnais : L3

Trouvez un architecte pour votre projet

Protection de vos données personnelles

Depuis toujours, architectes-france.com ne transfère aucune donnée personnelle à d'autres acteurs que ceux directement concernés par le projet (architectes, architectes d'intérieur...) et qui appartiennent à son réseau. Nos listes ne sont jamais transmises ou vendues à des partenaires extérieurs, même si ceux-ci appartiennent au domaine de la construction.
Toute modification dans ce domaine ne serait effectuée qu'avec votre consentement.

Je consens à ce que mes données personnelles soient collectées pour permettre à architectes-france de transférer votre projet aux architectes. Seul Architectes-france, ses équipes internes et la maitrise d'oeuvre concernée par le projet y ont accès. Aucune transmission de données à des tiers à l'exclusion de ceux décrits ci dessus n'est réalisée.

Mes données téléphoniques seront uniquement utilisées par Architectes-france.com et les architectes de notre réseau dans le cadre de la qualification et du suivi de mon projet.

Les données sont conservées pendant une durée de 18 mois courant à partir des derniers contacts effectifs entre architectes-france et vous ou architectes-france et un membre de la maitrise d'oeuvre en rapport avec ce projet et qui serait en relation avec architectes-france.

Conformément à la loi « informatique et libertés », vous pouvez exercer votre droit d'accès aux données vous concernant et les faire rectifier en contactant : Architectes-france, 23 avenue du Mirail - parc du Mirail - 33370 Artigues-près Bordeaux. Tél. 05.47.74.51.01 - contact@architectes-france.com

Trouvez un architecte pour votre projet

Protection de vos données personnelles

Depuis toujours, architectes-france.com ne transfère aucune donnée personnelle à d'autres acteurs que ceux directement concernés par le projet (architectes, architectes d'intérieur...) et qui appartiennent à son réseau. Nos listes ne sont jamais transmises ou vendues à des partenaires extérieurs, même si ceux-ci appartiennent au domaine de la construction.
Toute modification dans ce domaine ne serait effectuée qu'avec votre consentement.

Je consens à ce que mes données personnelles soient collectées pour permettre à architectes-france de transférer votre projet aux architectes. Seul Architectes-france, ses équipes internes et la maitrise d'oeuvre concernée par le projet y ont accès. Aucune transmission de données à des tiers à l'exclusion de ceux décrits ci dessus n'est réalisée.

Mes données téléphoniques seront uniquement utilisées par Architectes-france.com et les architectes de notre réseau dans le cadre de la qualification et du suivi de mon projet.

Les données sont conservées pendant une durée de 18 mois courant à partir des derniers contacts effectifs entre architectes-france et vous ou architectes-france et un membre de la maitrise d'oeuvre en rapport avec ce projet et qui serait en relation avec architectes-france.

Conformément à la loi « informatique et libertés », vous pouvez exercer votre droit d'accès aux données vous concernant et les faire rectifier en contactant : Architectes-france, 23 avenue du Mirail - parc du Mirail - 33370 Artigues-près Bordeaux. Tél. 05.47.74.51.01 - contact@architectes-france.com