Menu
Un projet réalisé par :a3 atelier  Architecte à Paris

Trois maisons de ville, duplex et studio

 Paris - 75
a3 atelier
Accueil Projets Trois maisons de ville, duplex et studio

Construction de trois maisons de ville.

Trois maisons de ville, duplex et studio

Le bâtiment est construit en fond de parcelle et donne sur un petit jardin.
Les trois maisons de ville ont deux niveaux avec chacune un accès indépendant depuis le jardin.
Le duplex et le studio sont situés au-dessus des maisons, desservis par un accès indépendant, par un escalier privatif depuis le jardin.

  • Trois maisons de ville, duplex et studio : image_projet_mini_42175

    photo aerienne

  • Trois maisons de ville, duplex et studio : jardins

    jardins

  • Trois maisons de ville, duplex et studio : escalier d'accès duplex et studio

    escalier d'accès duplex et studio

  • Trois maisons de ville, duplex et studio : accès duplex et studio

    accès duplex et studio

  • Trois maisons de ville, duplex et studio : séjour sur terrasse I

    séjour sur terrasse I

  • Trois maisons de ville, duplex et studio : terrasse II

    terrasse II

  • Trois maisons de ville, duplex et studio : plan RdC

    plan RdC

  • Trois maisons de ville, duplex et studio : plan 1° étage

    plan 1° étage

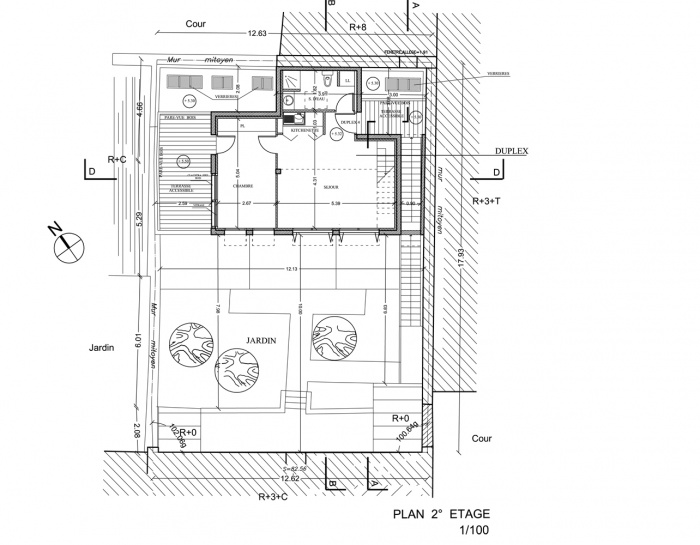
  • Trois maisons de ville, duplex et studio : plan 2° étage

    plan 1° étage

  • Trois maisons de ville, duplex et studio : plan mezzanine

    plan mezzanine

  • Trois maisons de ville, duplex et studio : coupe AA

    coupe AA

  • Trois maisons de ville, duplex et studio : façade sud ouest

    façade sud ouest

  • Trois maisons de ville, duplex et studio : perspective

    perspective

Trouvez un architecte pour votre projet

Protection de vos données personnelles

Depuis toujours, architectes-france.com ne transfère aucune donnée personnelle à d'autres acteurs que ceux directement concernés par le projet (architectes, architectes d'intérieur...) et qui appartiennent à son réseau. Nos listes ne sont jamais transmises ou vendues à des partenaires extérieurs, même si ceux-ci appartiennent au domaine de la construction.
Toute modification dans ce domaine ne serait effectuée qu'avec votre consentement.

Je consens à ce que mes données personnelles soient collectées pour permettre à architectes-france de transférer votre projet aux architectes. Seul Architectes-france, ses équipes internes et la maitrise d'oeuvre concernée par le projet y ont accès. Aucune transmission de données à des tiers à l'exclusion de ceux décrits ci dessus n'est réalisée.

Mes données téléphoniques seront uniquement utilisées par Architectes-france.com et les architectes de notre réseau dans le cadre de la qualification et du suivi de mon projet.

Les données sont conservées pendant une durée de 18 mois courant à partir des derniers contacts effectifs entre architectes-france et vous ou architectes-france et un membre de la maitrise d'oeuvre en rapport avec ce projet et qui serait en relation avec architectes-france.

Conformément à la loi « informatique et libertés », vous pouvez exercer votre droit d'accès aux données vous concernant et les faire rectifier en contactant : Architectes-france, 23 avenue du Mirail - parc du Mirail - 33370 Artigues-près Bordeaux. Tél. 05.47.74.51.01 - contact@architectes-france.com

Trouvez un architecte pour votre projet

Protection de vos données personnelles

Depuis toujours, architectes-france.com ne transfère aucune donnée personnelle à d'autres acteurs que ceux directement concernés par le projet (architectes, architectes d'intérieur...) et qui appartiennent à son réseau. Nos listes ne sont jamais transmises ou vendues à des partenaires extérieurs, même si ceux-ci appartiennent au domaine de la construction.
Toute modification dans ce domaine ne serait effectuée qu'avec votre consentement.

Je consens à ce que mes données personnelles soient collectées pour permettre à architectes-france de transférer votre projet aux architectes. Seul Architectes-france, ses équipes internes et la maitrise d'oeuvre concernée par le projet y ont accès. Aucune transmission de données à des tiers à l'exclusion de ceux décrits ci dessus n'est réalisée.

Mes données téléphoniques seront uniquement utilisées par Architectes-france.com et les architectes de notre réseau dans le cadre de la qualification et du suivi de mon projet.

Les données sont conservées pendant une durée de 18 mois courant à partir des derniers contacts effectifs entre architectes-france et vous ou architectes-france et un membre de la maitrise d'oeuvre en rapport avec ce projet et qui serait en relation avec architectes-france.

Conformément à la loi « informatique et libertés », vous pouvez exercer votre droit d'accès aux données vous concernant et les faire rectifier en contactant : Architectes-france, 23 avenue du Mirail - parc du Mirail - 33370 Artigues-près Bordeaux. Tél. 05.47.74.51.01 - contact@architectes-france.com